En 2023 Uña+Amandi participamos en el concurso para la Rehabilitación de la Casa de la Parra en la Plaza de la Quintana de Santiago de Compostela, quedando en segunda posición.*
Este es el proyecto que presentamos al concurso: una propuesta que llevaba la accesibilidad universal a todo el edificio, respectando su carácter y resaltando la arquitectura preexistente del Arquitecto pontevedrés Constantino Candeira Pérez.

El punto fuerte de la intervención y reclamo para el visitante era la azotea cualificada y diseñada como un mirador imprescindible de la ciudad hacia la Quintana y la Catedral de Santiago de Compostela.

LA PLANTA BAJA
Se disponen 2 salas multiusos, la mayor de ellas con capacidad para 120 personas y acceso directo desde el exterior. Ambas salas están interrelacionadas entre si mediante un tramo de escaleras y un ascensor , que salva la diferencia de cota entre los 2 edificios originales, creando un recorrido museístico accesible.
La sala mayor recibe iluminación cenital por doble altura y rampa translúcida de la primera planta.
CONVIVENCIA DE USOS
Los distintos usos administrativo y públicos, confluyen en el nuevo distribuidor central, pero manteniendo la independencia de circulaciones.
El acceso a la Casa de la Ciencia se realizará por la puerta de la parra , en la plaza de la Quintana , usándose la entrada posterior del callejón para uso del personal y mercancías (además de acceso accesible)

LA PLANTA PRIMERA
Es la planta que mejor conserva la intervención de Candeira, por lo que las intervenciones son mínimas .Esta planta se destina a sede de la delegación y gerencia del CSIC, con el balcón hacia la Quintana.
ACCESIBILIDAD UNIVERSAL
Para solucionar o problema de accesibilidad tomábamos las siguientes medidas:
-Ubicar un elevador en una posición central, que permite acceder a todas las plantas .
-Crear una rampa que conectara la calle con la circulación principal del edificio.
Estos 2 elementos se encuentran en el nuevo vestíbulo central de planta primera. Un espacio cualificado por la arquitectura de Candeira y con vocación expositiva.

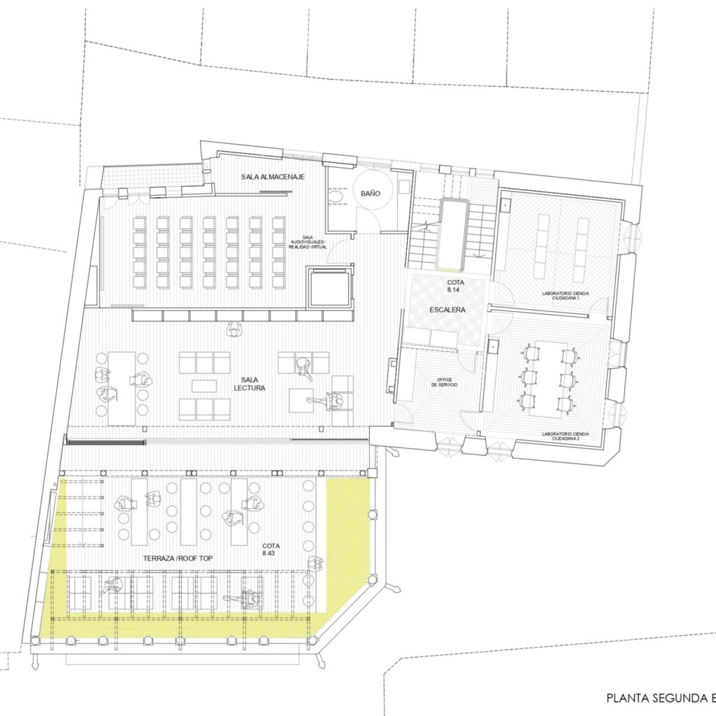
LA GRAN SALA DE LECTURA:
En la planta segunda, se creaba un gran espacio diáfano y a doble altura de sala de lectura, entendida como un espacio de relación con vistas a la Catedral.
La fachada de esta sala se acristala, abriendo la fachada a la arcada de Candeira y la espectacular azotea.
En el espacio a doble destacan la gran librería y la chimenea de Candeira.
EL ROOFTOP COMO RECLAMO
La azotea se cualifica y diseña como un mirador imprescindible en la ciudad.
El pavimento se eleva para enfatizar la continuidad con la sala de lectura y favorecer las vistas.
LA PARRA
La parra es una preexistencia que da nombre al edificio. Nuestra intención era reorganizar y extender de forma controlada su presencia a la cubierta.
Para ello en el rooftop habría zonas verdes y un emparrado que proporcionará sombra y significancia al edificio.

*El concurso fue ganado por la empresa «CIESA. Consultora de Ingeniería y Empresa S.L.»
Texto e imágenes propiedad de uña + amandi arquitectos. Todos los derechos reservados